¿Necesitas vender un inmueble para la compra de este?

Solicita una visita

⚠️ La cita quedará confirmada solo tras la respuesta del profesional; la solicitud es una propuesta sujeta a disponibilidad.

75.000 € Exp. #D033
  • icon 5 baño
  • icon 8 dor.
  • icon 362m²

Plaza Portales, 47600

Villalón de Campos - Valladolid

75.000 € Exp. #D033

Descubre una auténtica joya arquitectónica en pleno corazón de Villalón de Campos (Valladolid), situada en el Camino de Santiago de Madrid. Esta casa singular, frente a la emblemática Plaza Mayor, te ofrece una oportunidad irrepetible para disfrutar de un estilo de vida exclusivo y, al mismo tiempo, generar ingresos gracias a su distribución independiente por plantas.

Una propiedad con historia, encanto… y un enorme potencial

Su posición estratégica brinda unas vistas espectaculares y un entorno cargado de patrimonio, rodeado de monumentos históricos y la tranquilidad característica de esta villa castellana.

El inmueble se ha dividido en tres viviendas completamente independientes, una por planta, lo que permite múltiples usos:

  • - Vivir en una de las plantas con total privacidad.

  • - Alquilar las otras dos para obtener rentabilidad inmediata.

  • - Destinar el conjunto al turismo rural o proyectos de inversión.

  • - O bien reunir a una gran familia en un espacio amplio y versátil.

Esta casa destaca por su personalidad única:

  • Techos decorados con pinturas, molduras de escayola originales y detalles arquitectónicos que enamoran.

  • Balcones con balaustres finamente trabajados.

  • Una escalera majestuosa que recibe a los visitantes con elegancia.

  • Sótano–bodega ideal para reuniones y momentos especiales.

  • Un desván encantador en la planta superior.

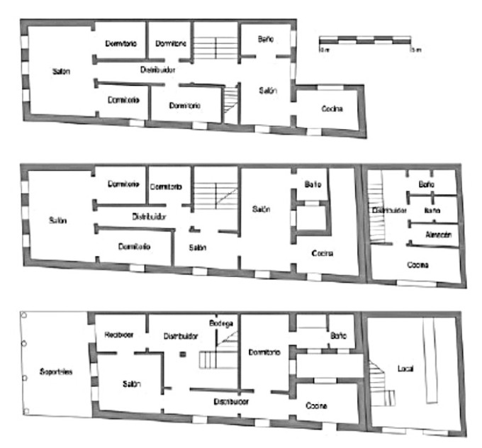
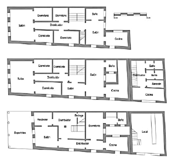
Distribución del inmueble

Casa principal:

  • - Planta Baja: Escalera, salón, recibidor, cocina, baño, distribuidor y 1 dormitorio.

  • - Planta Primera: Distribuidor, 3 salones (uno de ellos como recibidor de entrada), 3 dormitorios, cocina, baño y escalera.

  • - Planta Segunda: Distribuidor, 2 salones, cocina, 4 dormitorios, baño y escalera.

  • - Sótano: Acogedora bodega tradicional.

Local anexo:
Antiguo bar con enorme potencial. Puede transformarse en patio y terraza privados, creando un espacio exterior único, perfecto para ocio, restauración o zona chill-out asociada a una explotación turística.

  • Planta Baja: Zona pública y escalera.

  • Planta Primera: Distribuidor, cocina, dos aseos y almacén.

Un lienzo perfecto para personalizar.

La vivienda se encuentra en un estado de conservación aceptable, ideal para quienes buscan adaptar y modernizar a su gusto un inmueble con alma, manteniendo su esencia histórica.

Haz realidad tu proyecto de vida o inversión en una de las ubicaciones más especiales de Villalón de Campos.

¡Una propiedad con infinitas posibilidades te espera !

Ubicación del inmueble

¿Te interesa?

Déjanos tus datos y nos pondremos en contacto contigo lo antes posible.

Ver número de teléfono
Contáctanos en cualquier momento

La casa que te interesa...

Con los mejores intereses
img

Precio de tu propiedad

Entrada

Duración del préstamo

15 años

Cuota mensual *

6.539,05 €

  • Número de cuotas

    168 cuotas

  • Duración de la hipotéca

    15 años

  • Tipo interés
    (estimado)

    2,6%

  • Total desembolso

    1.098.561,06 €

¿No encuentras la casa que buscas?

Crear Alerta