¿Necesitas vender un inmueble para la compra de este?

Solicita una visita

⚠️ La cita quedará confirmada solo tras la respuesta del profesional; la solicitud es una propuesta sujeta a disponibilidad.

329.900 € Exp. #D163
  • icon 3 baño
  • icon 3 dor.
  • icon 187m²

Calle Segundo Rosario Jiménez, 35480

Agaete - Las Palmas

329.900 € Exp. #D163

Exclusivo tríplex en Agaete – Urbanización Acebuche, con vistas a Tamadaba

Se vende completamente amueblado este magnífico tríplex situado en la tranquila Urbanización Acebuche, en Agaete, una zona residencial consolidada, ideal para familias que buscan espacio, comodidad y calidad de vida.

La vivienda disfruta de vistas despejadas al Parque Natural de Tamadaba, lo que aporta un entorno natural privilegiado y una agradable sensación de tranquilidad.

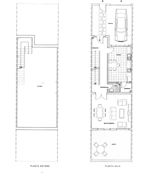
Distribución de la propiedad:

  • Planta sótano: amplio espacio polivalente actualmente destinado a gimnasio y oficina, ideal como zona de trabajo, estudio o área de ocio familiar.

  • Planta primera: dispone de porche con espacio para garaje, gran cocina totalmente amueblada y equipada, cuarto lavadero independiente, aseo, luminoso salón-comedor y acceso a una terraza con zona de barbacoa, perfecta para disfrutar al aire libre.

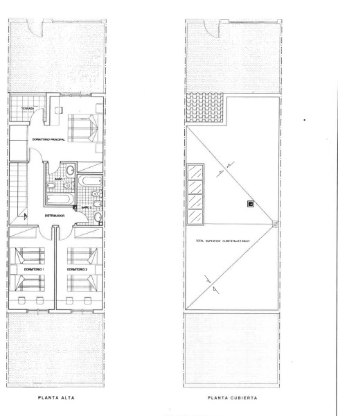
  • Planta alta: cuenta con tres dormitorios, baño completo y dormitorio principal en suite, con baño privado y vestidor, ofreciendo el máximo confort.

Una vivienda lista para entrar a vivir, totalmente equipada y amueblada, ubicada en un entorno tranquilo y seguro, con buen acceso y cercanía a todos los servicios.

Una excelente oportunidad para familias que desean un hogar completo, con vistas a Tamadaba y sin necesidad de realizar ninguna inversión adicional.

Los datos expuestos son meramente orientativos y están sujetos a errores u omisiones involuntarias. Los gastos derivados de la compra no están incluidos en el precio. En caso de aparecer mobiliario y/o vehículos en el anuncio, informamos que estos no están incluidos en la comercialización y venta del inmueble a no ser que se especifique en posteriores documentos contractuales. El propietario asume íntegramente los honorarios inmobiliarios.

¿Eres una inmobiliaria? La respuesta es sí, Ziegel busca el mejor comprador para nuestros propietarios y por ello colaboramos. Compartimos honorarios de captación con acuerdo por escrito.

Ubicación del inmueble

¿Te interesa?

Déjanos tus datos y nos pondremos en contacto contigo lo antes posible.

Ver número de teléfono
Contáctanos en cualquier momento

La casa que te interesa...

Con los mejores intereses
img

Precio de tu propiedad

Entrada

Duración del préstamo

15 años

Cuota mensual *

6.539,05 €

  • Número de cuotas

    168 cuotas

  • Duración de la hipotéca

    15 años

  • Tipo interés
    (estimado)

    2,6%

  • Total desembolso

    1.098.561,06 €

¿No encuentras la casa que buscas?

Crear Alerta